Espace propriétaire
fr

Votre recherche

Metz (57070)

4 pièces - 87 m²

Appartement duplex T4 – Metz Queuleu (Coteaux de la Seille)

371 000 €
Ref : c2-22
Découvrir le bien

Appartement duplex T4 – Metz Queuleu (Coteaux de la Seille)

Vous hésitez entre une maison et un appartement ? Ce logement est le parfait compromis.

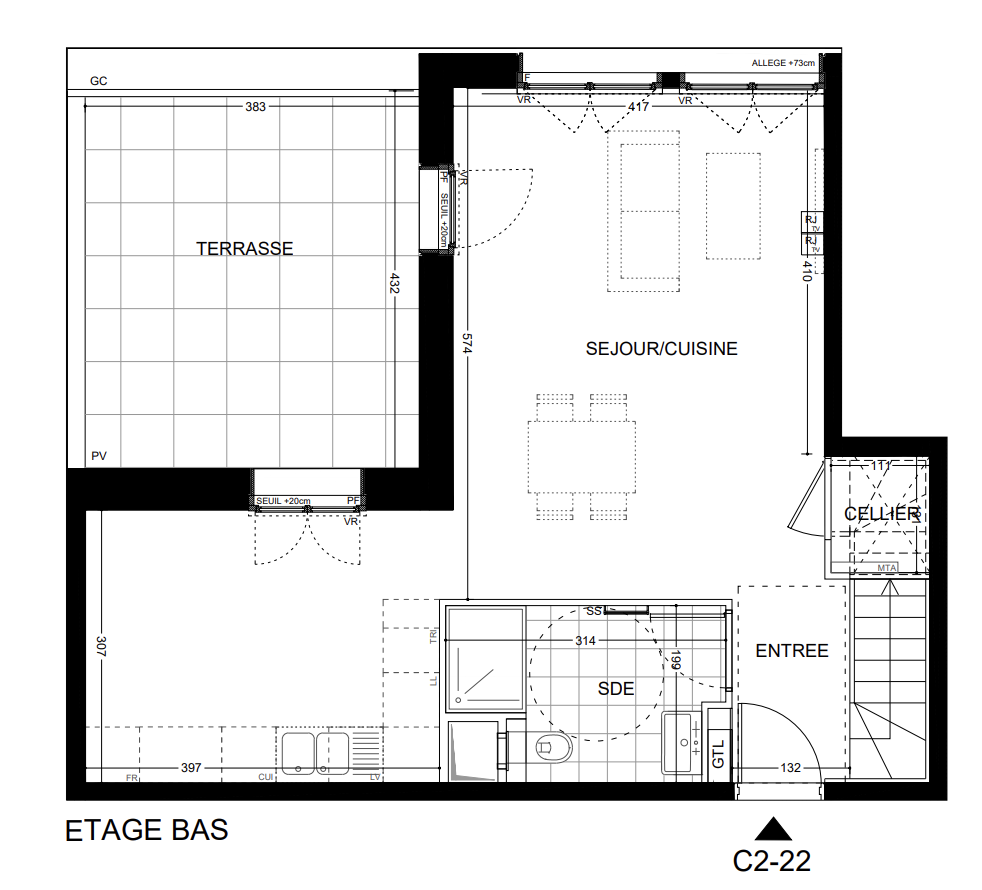
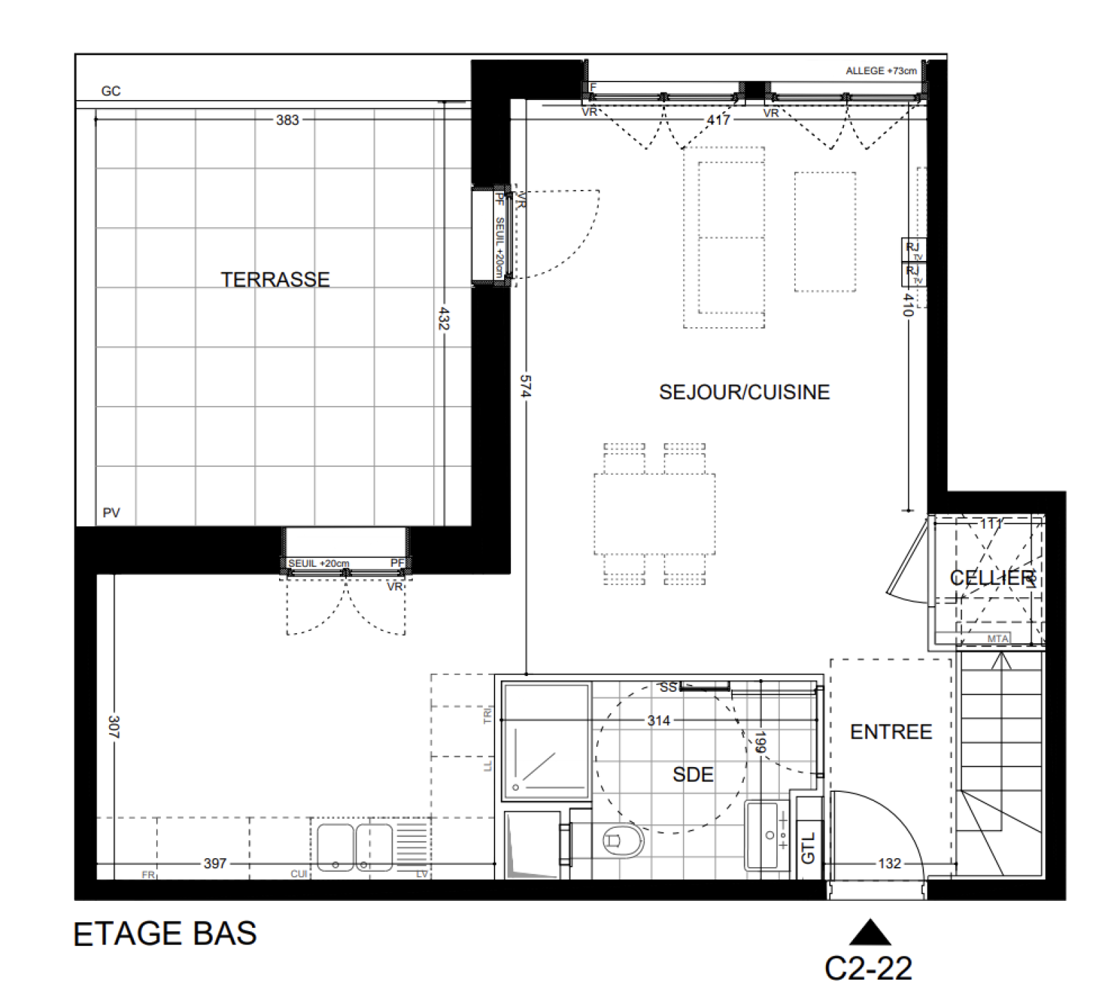
Situé dans le quartier calme et recherché des Coteaux de la Seille à Metz Queuleu, au 2ᵉ et dernier étage d’une belle résidence, cet appartement duplex T4 de 87 m² offre un cadre de vie agréable, lumineux et fonctionnel.

Il se compose d’une entrée avec placard, d’une salle de douche avec WC, ainsi que d’une spacieuse pièce de vie avec cuisine ouverte. Très lumineuse grâce à ses nombreuses fenêtres bien orientées, elle bénéficie d’un accès direct à une terrasse de 16 m², idéale pour profiter pleinement de l’extérieur.

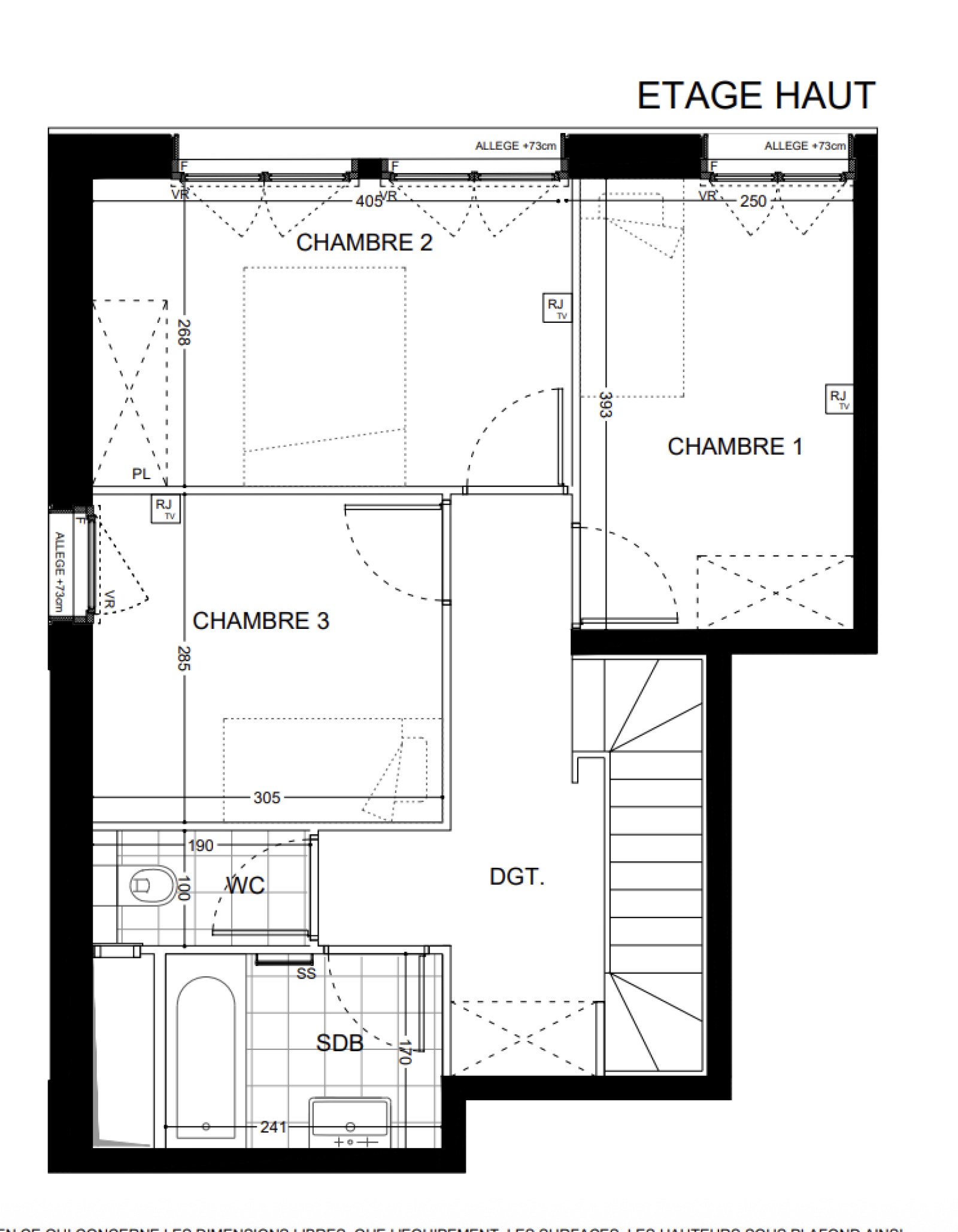
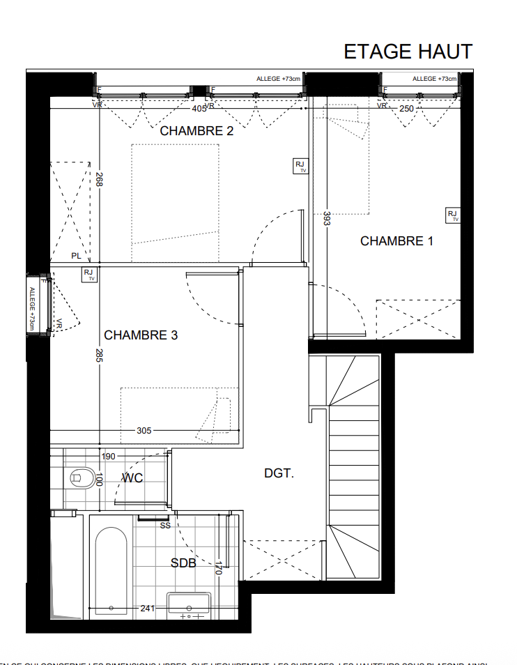
À l’étage, l’espace nuit comprend trois chambres, un WC séparé ainsi qu’une deuxième salle d’eau.

Le logement est vendu avec une place de parking.

Un bien rare, offrant les avantages d’une maison avec le confort d’un appartement, dans un environnement privilégié.

TRAD_ZEPHYR_Caracteristique TRAD_ZEPHYR_Valeurs
Code postal 57070
Surface loi Carrez (m²) 87 m²
Nombre de chambre(s) 3
Nombre de pièces 4
Etage 2
Nombre de niveaux 2
Ascenseur OUI
TRAD_ZEPHYR_Caracteristique TRAD_ZEPHYR_Valeurs
Nb de salle d'eau 1
Cuisine Américaine
Mode de chauffage Autre
Type de chauffage Au sol
Format de chauffage TRAD_FORMAT_CHAUFF_URBAIN
Balcon NON
Terrasse OUI
Cave NON
Surface cave (m²) 3
Exposition Sud-Ouest
Année de construction 2025
TRAD_ZEPHYR_Caracteristique TRAD_ZEPHYR_Valeurs
Copropriété NON
TRAD_ZEPHYR_Caracteristique TRAD_ZEPHYR_Valeurs
Prix de vente honoraires TTC inclus 371 000 €
DPE GES
Contacter pour ce bien
L'agence
Téléphone 03 87 18 12 12
Adresse
24 Rue du 20e Corps Américain 57000 Metz

* Champ obligatoire

Les informations recueillies sur ce formulaire sont enregistrées dans un fichier informatisé par La Boite Immo agissant comme Sous-traitant du traitement pour la gestion de la clientèle/prospects de l'Agence / du Réseau qui reste Responsable du Traitement de vos Données personnelles. La base légale du traitement repose sur l'intérêt légitime de l'Agence / du Réseau. Elles sont conservées jusqu'à demande de suppression et sont destinées à l'Agence / au Réseau. Conformément à la loi « informatique et libertés », vous disposez des droits d’accès, de rectification, d’effacement, d’opposition, de limitation et de portabilité de vos données. Vous pouvez retirer votre consentement à tout moment en contactant directement l’Agence / Le Réseau. Consultez le site https://cnil.fr/fr pour plus d’informations sur vos droits. Si vous estimez, après avoir contacté l'Agence / le Réseau, que vos droits « Informatique et Libertés » ne sont pas respectés, vous pouvez adresser une réclamation à la CNIL. Nous vous informons de l’existence de la liste d'opposition au démarchage téléphonique « Bloctel », sur laquelle vous pouvez vous inscrire ici : https://www.bloctel.gouv.fr Dans le cadre de la protection des Données personnelles, nous vous invitons à ne pas inscrire de Données sensibles dans le champ de saisie libre.
Ce site est protégé par reCAPTCHA, les Politiques de Confidentialité et les Conditions d'Utilisation de Google s'appliquent.

Découvrir nos outils