Espace propriétaire
fr

Votre recherche

Sous-compromis
Metz (57000)

5 pièces - 127,64 m²

Superbe duplex de 127 m² – quartier Amphithéâtre

450 000 €
Ref : E501
Découvrir le bien

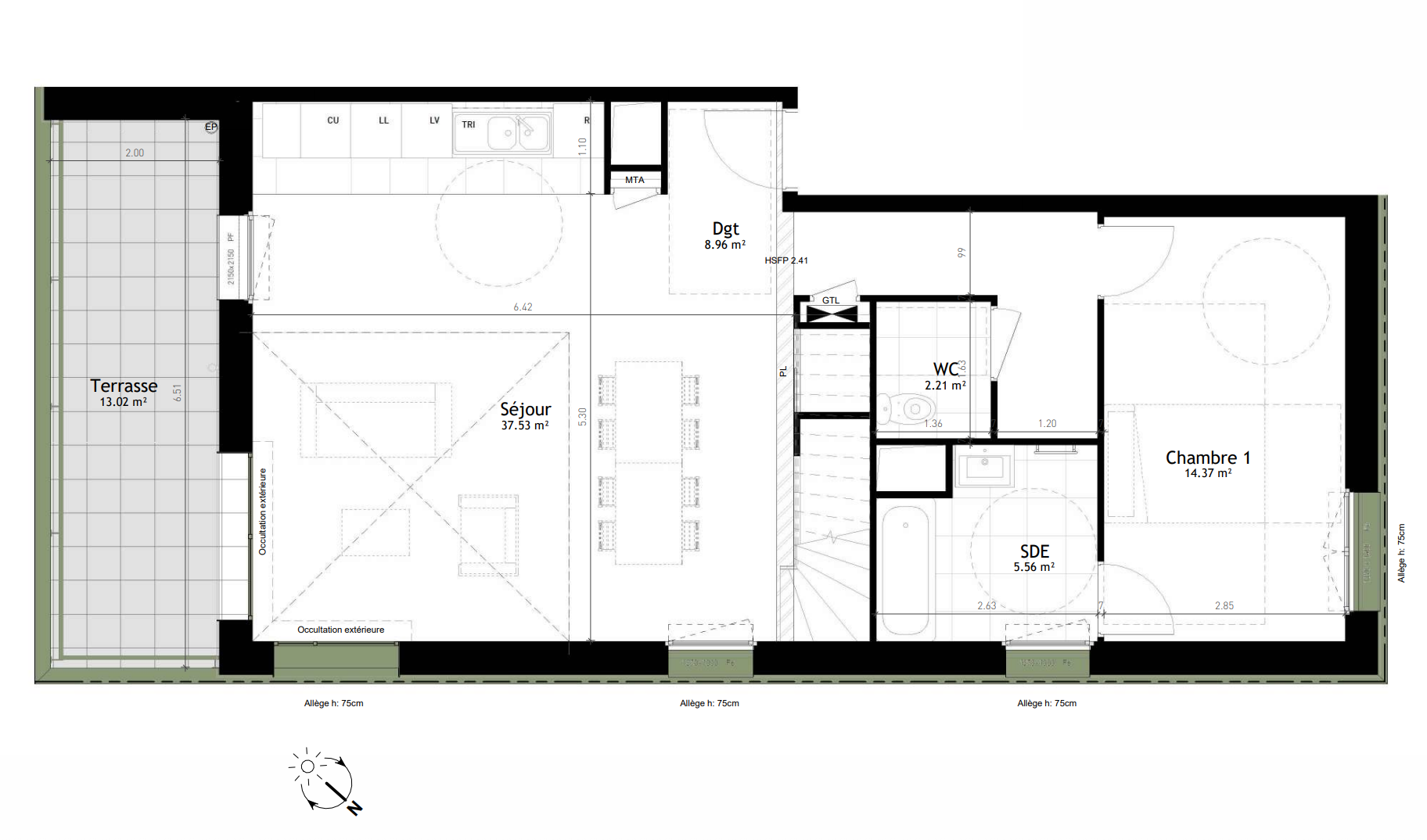
Superbe duplex de 127 m²

Ce bien se compose d’une entrée, d’une magnifique pièce de vie en double hauteur avec accès à une terrasse de 13 m², d’un dégagement desservant un WC séparé et une suite parentale avec salle de bain privative.

À l’étage : un cellier, un WC indépendant, une salle de bain avec fenêtre et trois chambres de 11 m², 12 m² et 14 m².

Prestations de qualité : chauffage au sol, volets roulants électriques, agencement optimisé.
Le bien est vendu avec une place de parking en sous-sol.

TRAD_ZEPHYR_Caracteristique TRAD_ZEPHYR_Valeurs
Code postal 57000
Surface loi Carrez (m²) 127,64 m²
Nombre de chambre(s) 4
Nombre de pièces 5
Etage 5
Nombre de niveaux 2
Ascenseur OUI
TRAD_ZEPHYR_Caracteristique TRAD_ZEPHYR_Valeurs
Nb de salle de bains 2
Cuisine Américaine
Interphone OUI
Visiophone OUI
Balcon OUI
Terrasse NON
Cave NON
Exposition Sud-Est
Quartier Quartier de l'Amphithéâtre
TRAD_ZEPHYR_Caracteristique TRAD_ZEPHYR_Valeurs
Copropriété OUI
nombre de lots 17
TRAD_ZEPHYR_Caracteristique TRAD_ZEPHYR_Valeurs
Prix de vente honoraires TTC inclus 450 000 €
DPE GES
Contacter pour ce bien
L'agence
Téléphone 03 87 18 12 12
Adresse
24 Rue du 20e Corps Américain 57000 Metz

* Champ obligatoire

Les informations recueillies sur ce formulaire sont enregistrées dans un fichier informatisé par La Boite Immo agissant comme Sous-traitant du traitement pour la gestion de la clientèle/prospects de l'Agence / du Réseau qui reste Responsable du Traitement de vos Données personnelles. La base légale du traitement repose sur l'intérêt légitime de l'Agence / du Réseau. Elles sont conservées jusqu'à demande de suppression et sont destinées à l'Agence / au Réseau. Conformément à la loi « informatique et libertés », vous disposez des droits d’accès, de rectification, d’effacement, d’opposition, de limitation et de portabilité de vos données. Vous pouvez retirer votre consentement à tout moment en contactant directement l’Agence / Le Réseau. Consultez le site https://cnil.fr/fr pour plus d’informations sur vos droits. Si vous estimez, après avoir contacté l'Agence / le Réseau, que vos droits « Informatique et Libertés » ne sont pas respectés, vous pouvez adresser une réclamation à la CNIL. Nous vous informons de l’existence de la liste d'opposition au démarchage téléphonique « Bloctel », sur laquelle vous pouvez vous inscrire ici : https://www.bloctel.gouv.fr Dans le cadre de la protection des Données personnelles, nous vous invitons à ne pas inscrire de Données sensibles dans le champ de saisie libre.
Ce site est protégé par reCAPTCHA, les Politiques de Confidentialité et les Conditions d'Utilisation de Google s'appliquent.

Découvrir nos outils