Espace propriétaire
fr

Votre recherche

Coup de coeur
Argancy (57640)

6 pièces - 165 m²

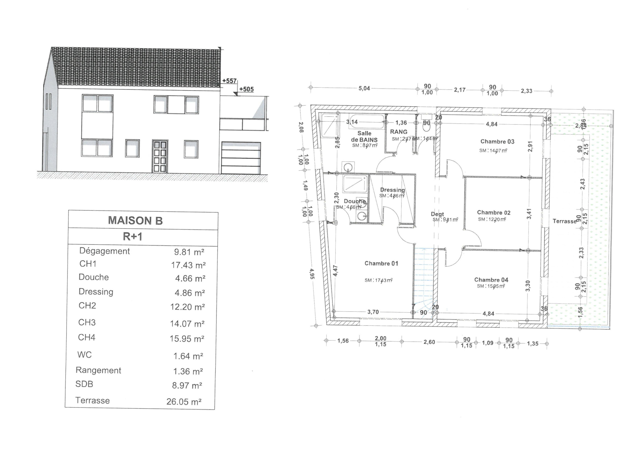
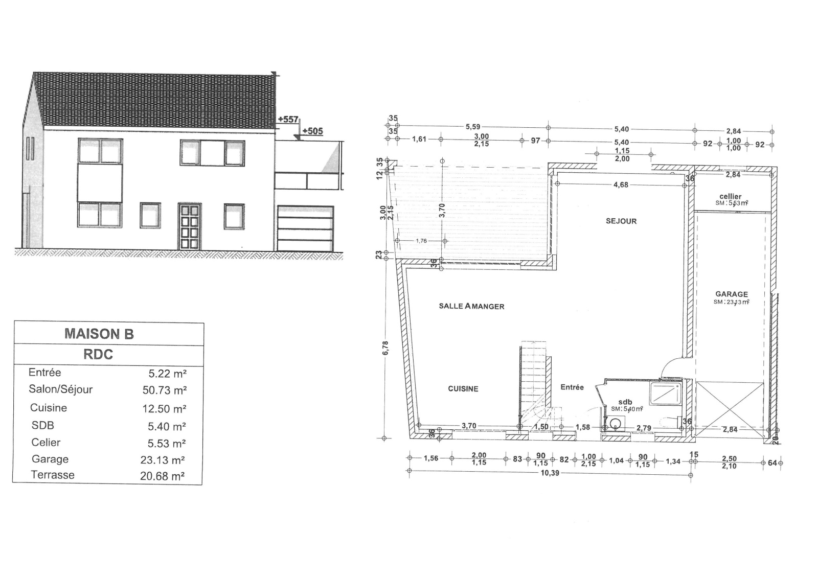
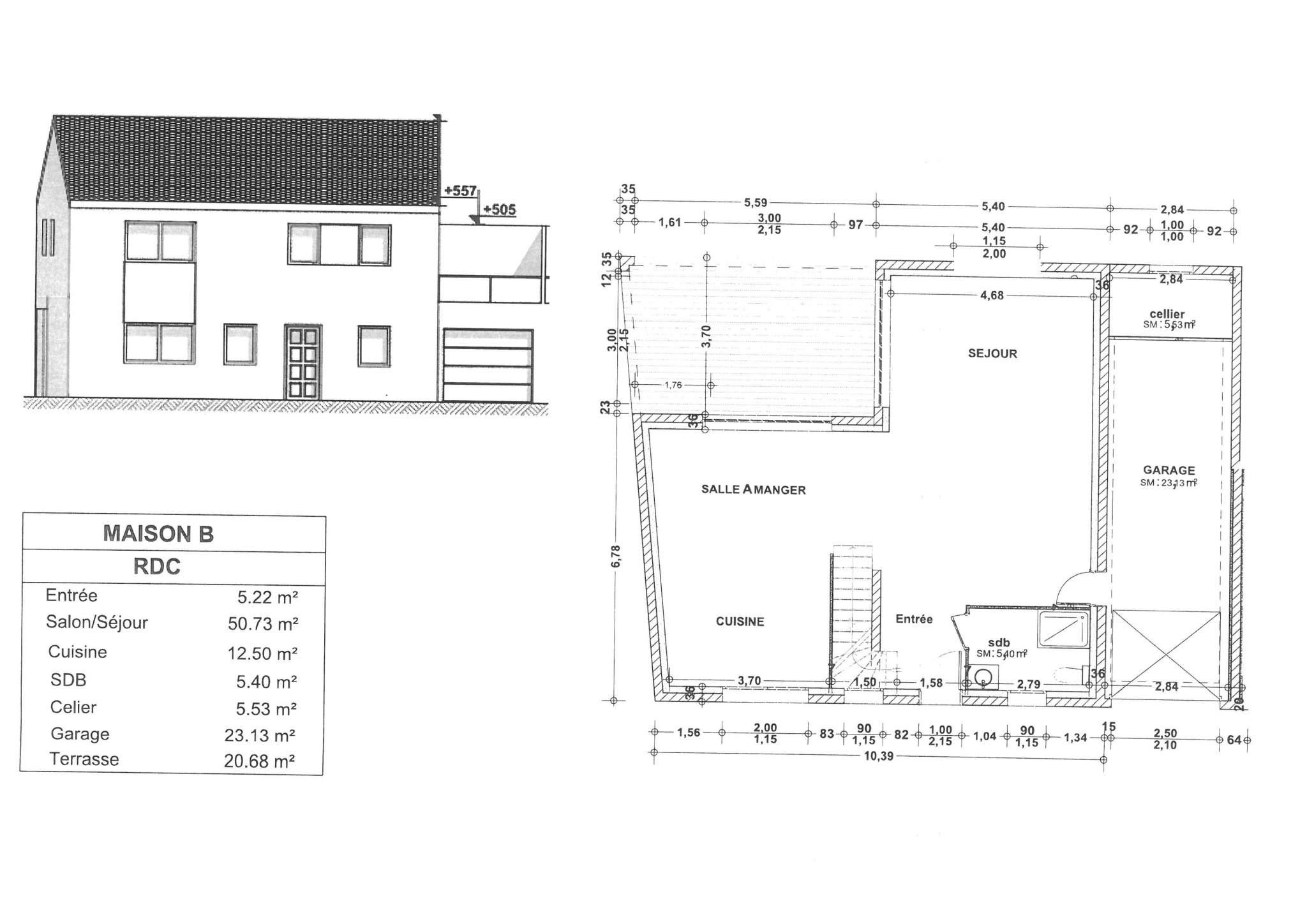
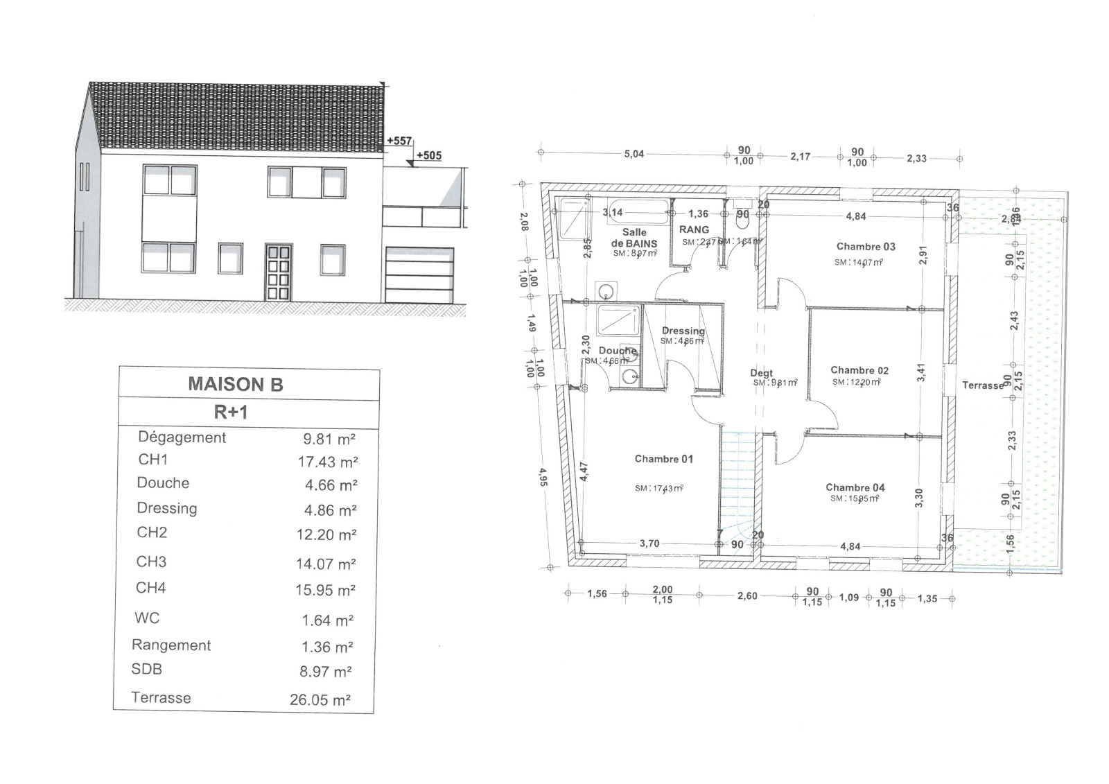
Maison 6 pièces – 165 m² – Rugy

365 000 €
Ref : argancy
Découvrir le bien

Maison 6 pièces – 165 m² – Rugy

Découvrez cette superbe maison récente offrant de beaux volumes et une vue dégagée sur la verdure.

Rez-de-chaussée

Vaste séjour lumineux de 62 m² avec accès terrasse, cuisine moderne équipée avec îlot central ouverte sur le séjour, cellier, salle de douche, WC séparés

Étage

4 chambres, dont 3 avec accès à une terrasse de 26 m², salle de douche équipée + baignoire, WC séparés, un cellier. et une Suite parentale spacieuse avec dressing et salle de douche privative

Extérieurs & annexes

2 Grandes terrasse avec vue dégagée

Garage double en enfilade

La maison n'a pas de jardin privatif

Située à Rugy, cette maison neuve combine confort moderne, luminosité et espace, idéale pour une famille à la recherche de qualité de vie.

TRAD_ZEPHYR_Caracteristique TRAD_ZEPHYR_Valeurs
Code postal 57640
Surface loi Carrez (m²) 165 m²
Nombre de chambre(s) 4
Nombre de pièces 6
Nombre de niveaux 1
Vue champs
TRAD_ZEPHYR_Caracteristique TRAD_ZEPHYR_Valeurs
Nb de salle de bains 1
Nb de salle d'eau 2
Cuisine Américaine
Type de cuisine Equipée
Mode de chauffage Pompe à chaleur
Type de chauffage TRAD_TYPE_CHAUFF_AIR_EAU
Format de chauffage Individuel
Terrasse OUI
Murs mitoyens 1
Nombre de garage 1
Année de construction 2025
TRAD_ZEPHYR_Caracteristique TRAD_ZEPHYR_Valeurs
Copropriété NON
TRAD_ZEPHYR_Caracteristique TRAD_ZEPHYR_Valeurs
Prix de vente honoraires TTC inclus 365 000 €
DPE GES
Contacter pour ce bien
L'agence
Téléphone 03 87 18 12 12
Adresse
24 Rue du 20e Corps Américain 57000 Metz

* Champ obligatoire

Les informations recueillies sur ce formulaire sont enregistrées dans un fichier informatisé par La Boite Immo agissant comme Sous-traitant du traitement pour la gestion de la clientèle/prospects de l'Agence / du Réseau qui reste Responsable du Traitement de vos Données personnelles. La base légale du traitement repose sur l'intérêt légitime de l'Agence / du Réseau. Elles sont conservées jusqu'à demande de suppression et sont destinées à l'Agence / au Réseau. Conformément à la loi « informatique et libertés », vous disposez des droits d’accès, de rectification, d’effacement, d’opposition, de limitation et de portabilité de vos données. Vous pouvez retirer votre consentement à tout moment en contactant directement l’Agence / Le Réseau. Consultez le site https://cnil.fr/fr pour plus d’informations sur vos droits. Si vous estimez, après avoir contacté l'Agence / le Réseau, que vos droits « Informatique et Libertés » ne sont pas respectés, vous pouvez adresser une réclamation à la CNIL. Nous vous informons de l’existence de la liste d'opposition au démarchage téléphonique « Bloctel », sur laquelle vous pouvez vous inscrire ici : https://www.bloctel.gouv.fr Dans le cadre de la protection des Données personnelles, nous vous invitons à ne pas inscrire de Données sensibles dans le champ de saisie libre.
Ce site est protégé par reCAPTCHA, les Politiques de Confidentialité et les Conditions d'Utilisation de Google s'appliquent.

Découvrir nos outils