Espace propriétaire
fr

Votre recherche

Florange (57190)

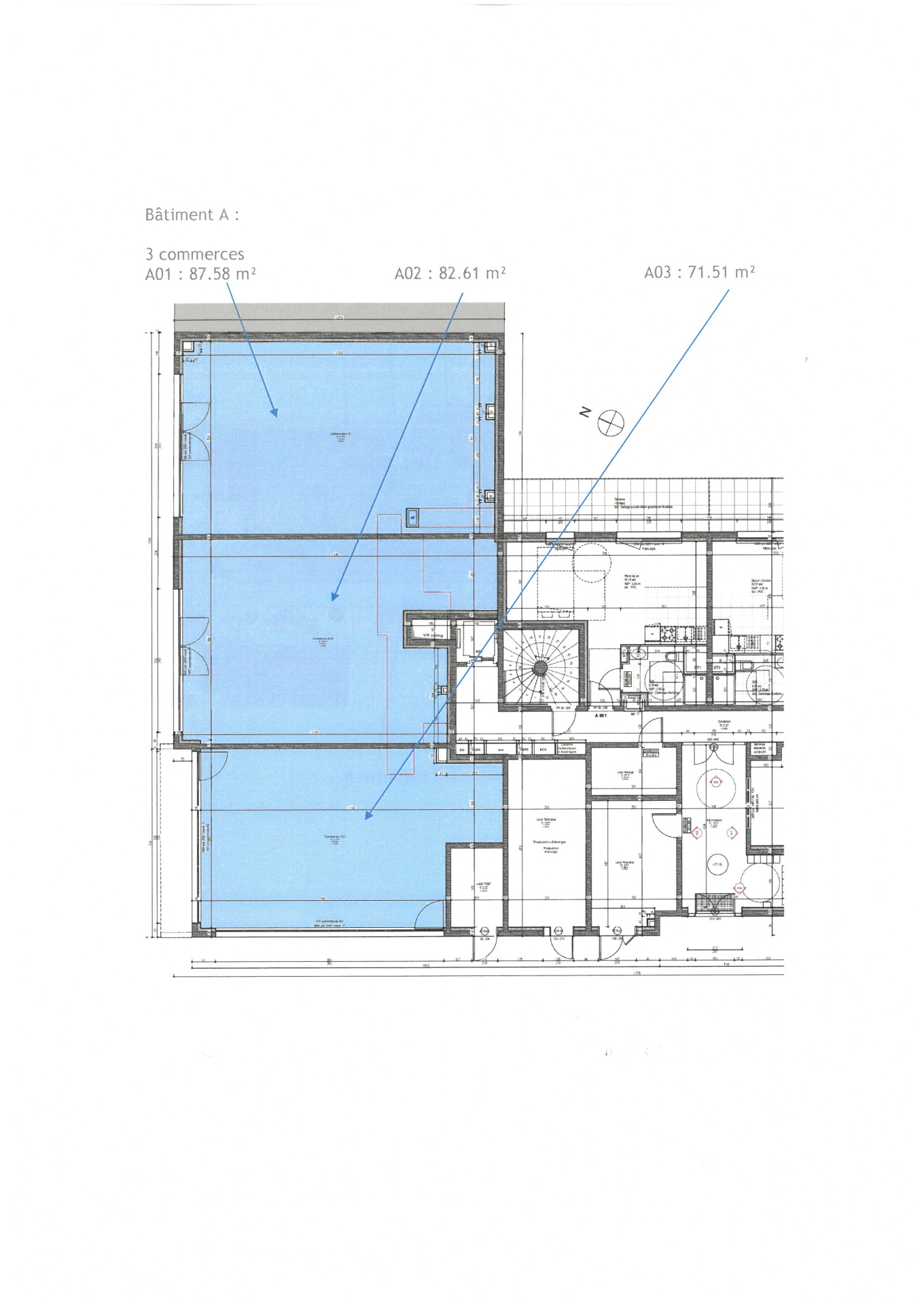
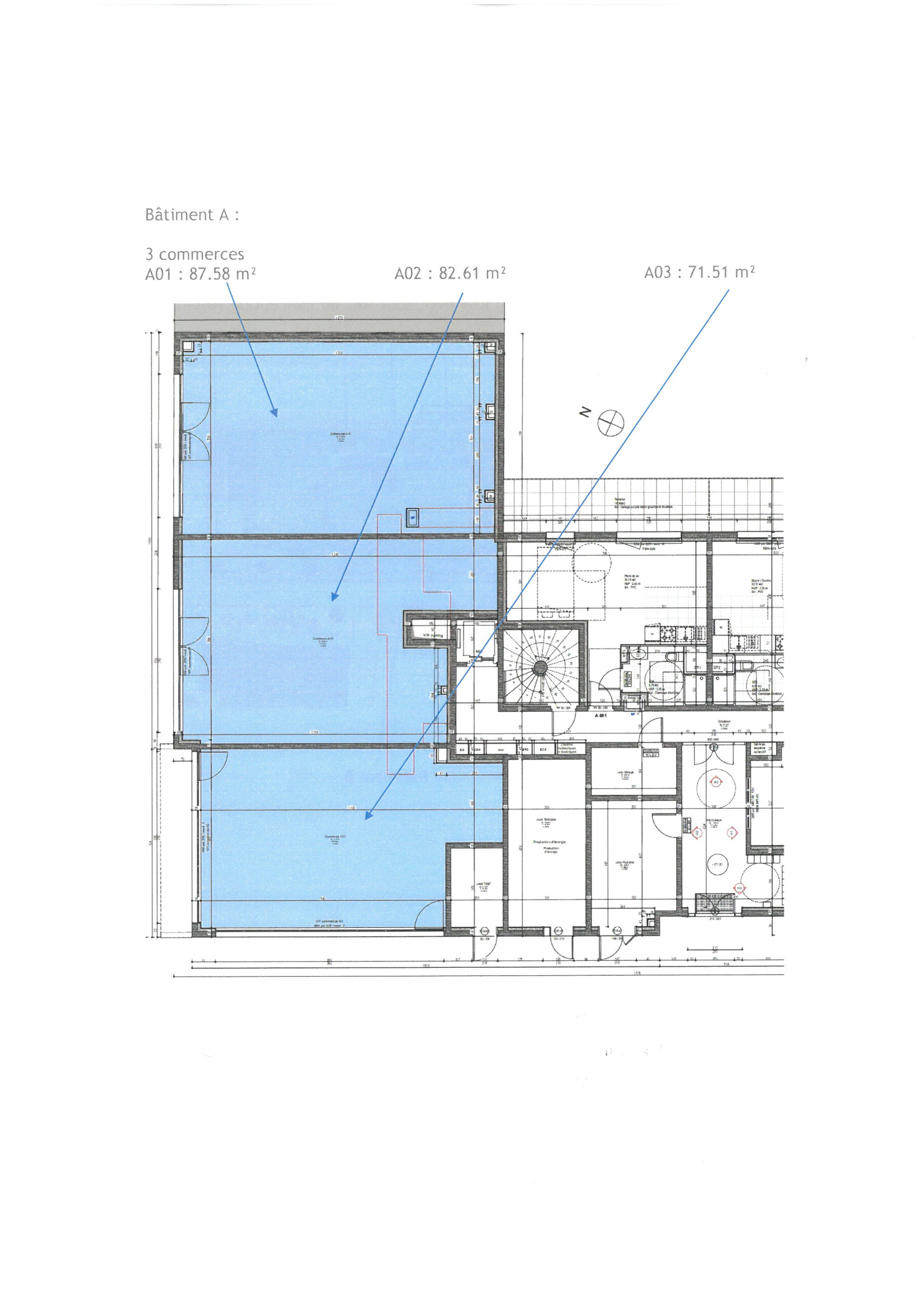
Local commercial - 62 m²

Local commercial - bureaux FLORANGE secteur très prisé.

159 136 €
Ref :
Découvrir le bien

À VENDRE – Local commercial / Bureau 62 m² – Florange – Secteur très recherché

 

Situé dans un environnement particulièrement prisé de Florange, ce magnifique local commercial ou bureau développe une surface de 62 m² et bénéficie d’une façade exceptionnelle de 9,83 mètres, offrant une visibilité optimale.

 

Le bien est livré brut de béton, avec fluides en attente, vous laissant une totale liberté d’aménagement selon votre activité.

Livraison prévisionnelle : fin 2027.

Travaux d’aménagement intérieur à prévoir.

Ce local est idéal pour :

  • Activité commerciale
  • Bureau / siège de société
  • Profession libérale
  • Cabinet médical ou paramédical

 Son emplacement stratégique et sa large façade en font une opportunité rare sur le secteur.

 Pour plus d’informations ou organiser un rendez-vous, n’hésitez pas à nous contacter.

TRAD_ZEPHYR_Caracteristique TRAD_ZEPHYR_Valeurs
Type de transac Local commercial
Code postal 57190
Vue degagée
Superficie (m²) 62
TRAD_ZEPHYR_Caracteristique TRAD_ZEPHYR_Valeurs
Mode de chauffage Autre
Type de chauffage Autre
Format de chauffage Individuel
Année de construction 2026
Vitrine OUI
TRAD_ZEPHYR_Caracteristique TRAD_ZEPHYR_Valeurs
Copropriété NON
TRAD_ZEPHYR_Caracteristique TRAD_ZEPHYR_Valeurs
Prix de vente HT honoraires inclus 159 136 €
Les honoraires d'agence seront intégralement à la charge du vendeur  
DPE GES
Contacter pour ce bien
L'agence
Téléphone 03 87 18 12 12
Adresse
24 Rue du 20e Corps Américain 57000 Metz

* Champ obligatoire

Les informations recueillies sur ce formulaire sont enregistrées dans un fichier informatisé par La Boite Immo agissant comme Sous-traitant du traitement pour la gestion de la clientèle/prospects de l'Agence / du Réseau qui reste Responsable du Traitement de vos Données personnelles. La base légale du traitement repose sur l'intérêt légitime de l'Agence / du Réseau. Elles sont conservées jusqu'à demande de suppression et sont destinées à l'Agence / au Réseau. Conformément à la loi « informatique et libertés », vous disposez des droits d’accès, de rectification, d’effacement, d’opposition, de limitation et de portabilité de vos données. Vous pouvez retirer votre consentement à tout moment en contactant directement l’Agence / Le Réseau. Consultez le site https://cnil.fr/fr pour plus d’informations sur vos droits. Si vous estimez, après avoir contacté l'Agence / le Réseau, que vos droits « Informatique et Libertés » ne sont pas respectés, vous pouvez adresser une réclamation à la CNIL. Nous vous informons de l’existence de la liste d'opposition au démarchage téléphonique « Bloctel », sur laquelle vous pouvez vous inscrire ici : https://www.bloctel.gouv.fr Dans le cadre de la protection des Données personnelles, nous vous invitons à ne pas inscrire de Données sensibles dans le champ de saisie libre.
Ce site est protégé par reCAPTCHA, les Politiques de Confidentialité et les Conditions d'Utilisation de Google s'appliquent.

Découvrir nos outils