Espace propriétaire
fr

Votre recherche

Metz (57000)

4 pièces - 90 m²

Appartement T4 – 1er étage – Quartier de la Seille

360 000 €
Ref : B12salia
Découvrir le bien

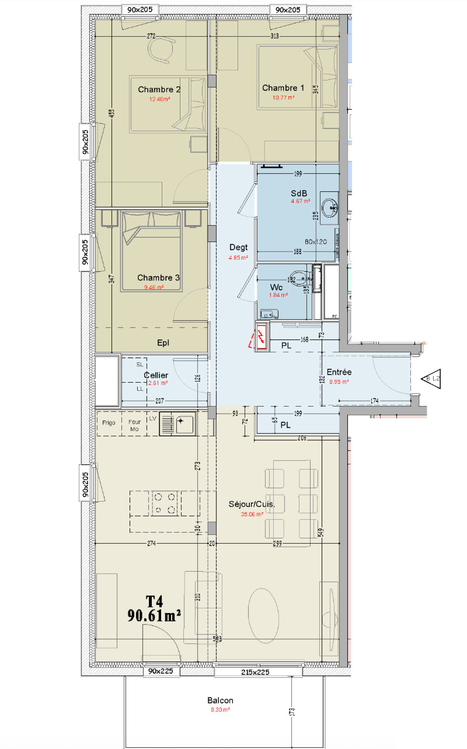
Appartement T4 – 1er étage – Quartier de la Seille

Situé au 1er étage d’une résidence récente de 2025, dans le recherché quartier de la Seille, à proximité immédiate du parc de la Seille, cet appartement T4 séduit par ses belles finitions et son agencement fonctionnel.

Il se compose d’une entrée avec placard pour vestes et chaussures, d’un cellier, puis d’une spacieuse pièce de vie de 36 m² avec cuisine ouverte, bénéficiant d’un accès direct, via une baie coulissante, à un balcon exposé plein Sud.

L’espace nuit comprend un WC séparé avec lave-mains, une salle de bains entièrement équipée avec faïence toute hauteur, ainsi que trois chambres confortables.

L’appartement est vendu avec une place de parking en sous-sol.

Un bien moderne et lumineux, idéal pour une famille ou un investissement de qualité.

TRAD_ZEPHYR_Caracteristique TRAD_ZEPHYR_Valeurs
Code postal 57000
Surface loi Carrez (m²) 90 m²
Nombre de chambre(s) 3
Nombre de pièces 4
Etage 1
Ascenseur OUI
TRAD_ZEPHYR_Caracteristique TRAD_ZEPHYR_Valeurs
Nb de salle de bains 1
Cuisine Américaine
Mode de chauffage Autre
Type de chauffage Au sol
Format de chauffage Individuel
Interphone OUI
Visiophone OUI
Balcon OUI
Terrasse NON
Cave NON
Exposition Sud
Année de construction 2025
TRAD_ZEPHYR_Caracteristique TRAD_ZEPHYR_Valeurs
Copropriété NON
TRAD_ZEPHYR_Caracteristique TRAD_ZEPHYR_Valeurs
Prix de vente honoraires TTC inclus 360 000 €
DPE GES
Contacter pour ce bien
L'agence
Téléphone 03 87 18 12 12
Adresse
24 Rue du 20e Corps Américain 57000 Metz

* Champ obligatoire

Les informations recueillies sur ce formulaire sont enregistrées dans un fichier informatisé par La Boite Immo agissant comme Sous-traitant du traitement pour la gestion de la clientèle/prospects de l'Agence / du Réseau qui reste Responsable du Traitement de vos Données personnelles. La base légale du traitement repose sur l'intérêt légitime de l'Agence / du Réseau. Elles sont conservées jusqu'à demande de suppression et sont destinées à l'Agence / au Réseau. Conformément à la loi « informatique et libertés », vous disposez des droits d’accès, de rectification, d’effacement, d’opposition, de limitation et de portabilité de vos données. Vous pouvez retirer votre consentement à tout moment en contactant directement l’Agence / Le Réseau. Consultez le site https://cnil.fr/fr pour plus d’informations sur vos droits. Si vous estimez, après avoir contacté l'Agence / le Réseau, que vos droits « Informatique et Libertés » ne sont pas respectés, vous pouvez adresser une réclamation à la CNIL. Nous vous informons de l’existence de la liste d'opposition au démarchage téléphonique « Bloctel », sur laquelle vous pouvez vous inscrire ici : https://www.bloctel.gouv.fr Dans le cadre de la protection des Données personnelles, nous vous invitons à ne pas inscrire de Données sensibles dans le champ de saisie libre.
Ce site est protégé par reCAPTCHA, les Politiques de Confidentialité et les Conditions d'Utilisation de Google s'appliquent.

Découvrir nos outils