Espace propriétaire
fr

Votre recherche

Montigny-lès-Metz (57950)

4 pièces - 95 m²

Appartement au dernier étage – Vue dégagée sur le parc Jacques Prévert

460 000 €
Ref : 6b-43
Découvrir le bien

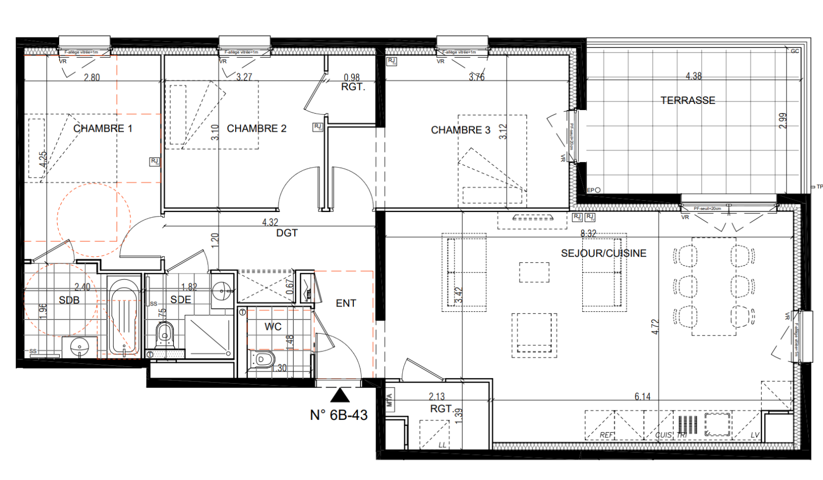
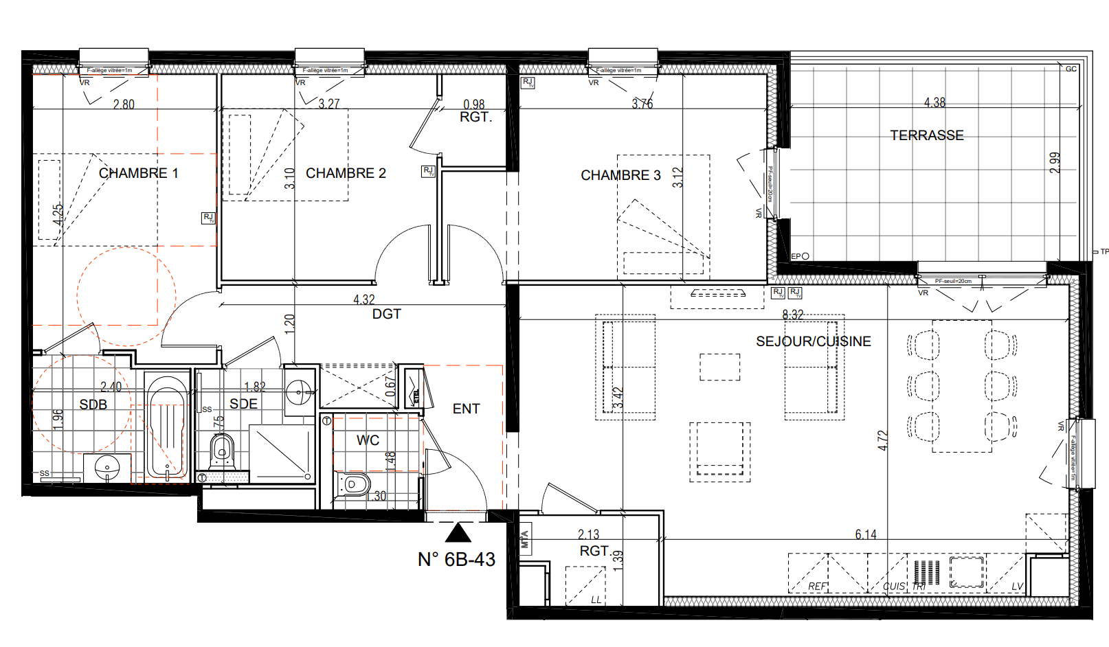
Appartement au dernier étage – Vue dégagée sur le parc Jacques Prévert

Situé dans le quartier Lizé, au sein d’un immeuble de 4 étages en bordure directe du parc Jacques Prévert, cet appartement bénéficie d’un emplacement privilégié et d’une vue dégagée.

Il se compose d’une entrée avec placard, d’un WC suspendu indépendant, puis d’un dégagement desservant :

- une première chambre avec accès à la terrasse,

- une deuxième chambre de 12 m² avec rangement,

- une troisième chambre disposant de sa salle de bains privative entièrement équipée (meuble vasque avec miroir, faïence, baignoire).

Une salle d’eau indépendante complète l’espace nuit.

La pièce de vie de 36 m², très lumineuse, avec cuisine ouverte, offre un accès par double porte-fenêtre à une terrasse de 13 m² exposée Ouest, bénéficiant d’une vue directe sur le parc.

Le bien est vendu avec deux places de parking en sous-sol.

Un appartement rare, alliant luminosité, confort et cadre verdoyant, idéal pour les amateurs de tranquillité et de vues dégagées

TRAD_ZEPHYR_Caracteristique TRAD_ZEPHYR_Valeurs
Code postal 57950
Surface loi Carrez (m²) 95 m²
Nombre de chambre(s) 3
Nombre de pièces 4
Etage 4
Ascenseur OUI
Vue parc
TRAD_ZEPHYR_Caracteristique TRAD_ZEPHYR_Valeurs
Nb de salle de bains 1
Nb de salle d'eau 1
Cuisine Américaine
Interphone OUI
Visiophone OUI
Balcon NON
Terrasse OUI
Cave NON
Exposition Ouest
TRAD_ZEPHYR_Caracteristique TRAD_ZEPHYR_Valeurs
Copropriété OUI
nombre de lots 13
TRAD_ZEPHYR_Caracteristique TRAD_ZEPHYR_Valeurs
Prix de vente honoraires TTC inclus 460 000 €
DPE GES
Contacter pour ce bien
L'agence
Téléphone 03 87 18 12 12
Adresse
24 Rue du 20e Corps Américain 57000 Metz

* Champ obligatoire

Les informations recueillies sur ce formulaire sont enregistrées dans un fichier informatisé par La Boite Immo agissant comme Sous-traitant du traitement pour la gestion de la clientèle/prospects de l'Agence / du Réseau qui reste Responsable du Traitement de vos Données personnelles. La base légale du traitement repose sur l'intérêt légitime de l'Agence / du Réseau. Elles sont conservées jusqu'à demande de suppression et sont destinées à l'Agence / au Réseau. Conformément à la loi « informatique et libertés », vous disposez des droits d’accès, de rectification, d’effacement, d’opposition, de limitation et de portabilité de vos données. Vous pouvez retirer votre consentement à tout moment en contactant directement l’Agence / Le Réseau. Consultez le site https://cnil.fr/fr pour plus d’informations sur vos droits. Si vous estimez, après avoir contacté l'Agence / le Réseau, que vos droits « Informatique et Libertés » ne sont pas respectés, vous pouvez adresser une réclamation à la CNIL. Nous vous informons de l’existence de la liste d'opposition au démarchage téléphonique « Bloctel », sur laquelle vous pouvez vous inscrire ici : https://www.bloctel.gouv.fr Dans le cadre de la protection des Données personnelles, nous vous invitons à ne pas inscrire de Données sensibles dans le champ de saisie libre.
Ce site est protégé par reCAPTCHA, les Politiques de Confidentialité et les Conditions d'Utilisation de Google s'appliquent.

Découvrir nos outils