Espace propriétaire
fr

Votre recherche

Cattenom (57570)

4 pièces - 103,59 m²

Appartement dernier étage avec terrasse tropézienne

406 000 €
Ref : LHH201
Découvrir le bien

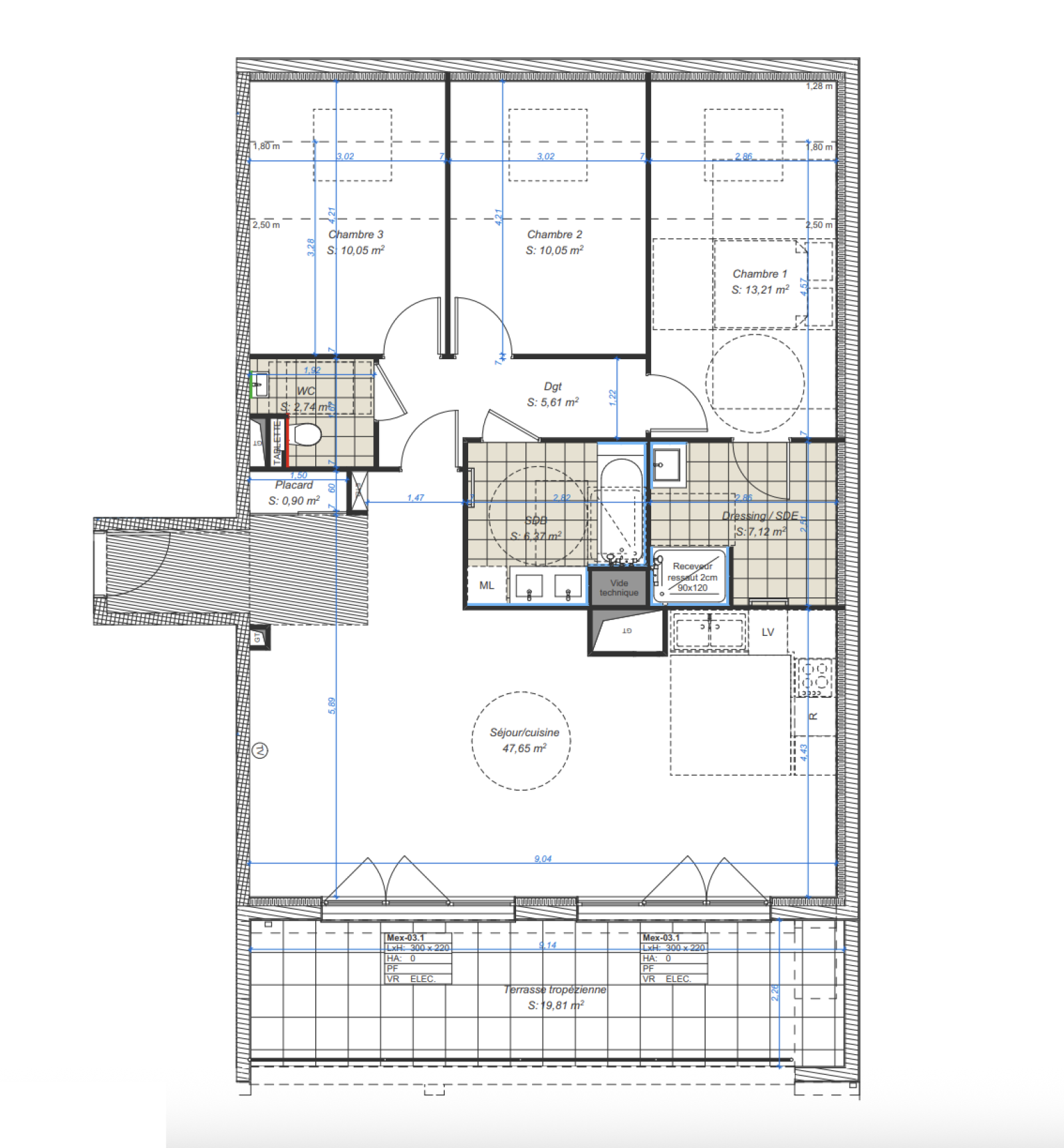
Appartement dernier étage avec terrasse tropézienne

Au sein d’une petite résidence à taille humaine composée de seulement 25 appartements, découvrez ce joli bien situé au 2ᵉ et dernier étage, desservi par un ascenseur.

L’appartement offre de beaux volumes et se compose d’une entrée avec placard, menant à une spacieuse pièce de vie de plus de 47 m² avec cuisine ouverte. Celle-ci bénéficie d’un double accès à une agréable terrasse de 22 m² de type tropézienne, idéale pour profiter des beaux jours en toute tranquillité.

L’espace nuit, bien distinct, comprend un WC séparé avec lave-mains, deux chambres d’environ 10 m² ainsi qu’une suite parentale de 13 m² avec sa salle d’eau privative. Une salle de bains avec double vasque et un emplacement pour machine à laver complète l’ensemble.

Ce bien est vendu avec trois places de stationnement, dont deux extérieures et une couverte, offrant un réel confort au quotidien.

Un appartement alliant espace, luminosité et prestations, à découvrir sans tarder.

TRAD_ZEPHYR_Caracteristique TRAD_ZEPHYR_Valeurs
Code postal 57570
Surface loi Carrez (m²) 103,59 m²
Nombre de chambre(s) 3
Nombre de pièces 4
Etage 2
Ascenseur OUI
TRAD_ZEPHYR_Caracteristique TRAD_ZEPHYR_Valeurs
Nb de salle de bains 1
Nb de salle d'eau 1
Cuisine Américaine
Terrasse OUI
Cave NON
Nombre de parking 2
Exposition Ouest
TRAD_ZEPHYR_Caracteristique TRAD_ZEPHYR_Valeurs
Copropriété OUI
nombre de lots 50
TRAD_ZEPHYR_Caracteristique TRAD_ZEPHYR_Valeurs
Prix de vente honoraires TTC inclus 406 000 €
DPE GES
Contacter pour ce bien
L'agence
Téléphone 03 87 18 12 12
Adresse
24 Rue du 20e Corps Américain 57000 Metz

* Champ obligatoire

Les informations recueillies sur ce formulaire sont enregistrées dans un fichier informatisé par La Boite Immo agissant comme Sous-traitant du traitement pour la gestion de la clientèle/prospects de l'Agence / du Réseau qui reste Responsable du Traitement de vos Données personnelles. La base légale du traitement repose sur l'intérêt légitime de l'Agence / du Réseau. Elles sont conservées jusqu'à demande de suppression et sont destinées à l'Agence / au Réseau. Conformément à la loi « informatique et libertés », vous disposez des droits d’accès, de rectification, d’effacement, d’opposition, de limitation et de portabilité de vos données. Vous pouvez retirer votre consentement à tout moment en contactant directement l’Agence / Le Réseau. Consultez le site https://cnil.fr/fr pour plus d’informations sur vos droits. Si vous estimez, après avoir contacté l'Agence / le Réseau, que vos droits « Informatique et Libertés » ne sont pas respectés, vous pouvez adresser une réclamation à la CNIL. Nous vous informons de l’existence de la liste d'opposition au démarchage téléphonique « Bloctel », sur laquelle vous pouvez vous inscrire ici : https://www.bloctel.gouv.fr Dans le cadre de la protection des Données personnelles, nous vous invitons à ne pas inscrire de Données sensibles dans le champ de saisie libre.
Ce site est protégé par reCAPTCHA, les Politiques de Confidentialité et les Conditions d'Utilisation de Google s'appliquent.

Découvrir nos outils