Espace propriétaire
fr

Votre recherche

Woippy (57140)

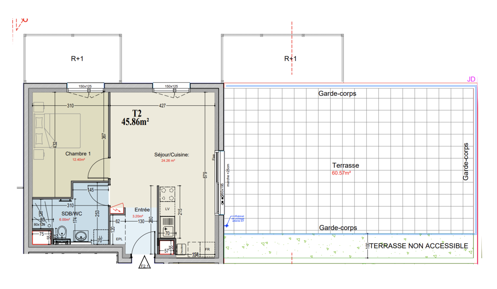
2 pièces - 45,86 m²

Appartement T2 de 45 m² avec balcon et parking – Woippy Village

186 000 €
Ref : F21
Découvrir le bien

Appartement rare avec terrasse exceptionnelle à Woippy

À proximité immédiate du centre du village de Woippy, découvrez ce bel appartement situé dans un environnement calme et résidentiel, au 2ᵉ et dernier étage d’une résidence récente.

D’une surface d’environ 45 m², ce bien se distingue par sa magnifique terrasse de 60 m² exposée plein sud, offrant une vue dégagée et sans vis-à-vis — un véritable atout rare sur le secteur.

L’appartement se compose de  d'une entrée avec emplacement pour placard, une pièce de vie lumineuse de 24 m² avec cuisine ouverte, une grande baie vitrée coulissante donnant directement accès à la terrasse. Une chambre confortable de 12 m² et une salle de douche fonctionnelle

Ce bien est vendu avec une place de parking en sous-sol, apportant confort et sécurité au quotidien.

Prix : 186 000 € TVA 5.5% - 212 000 € TVA 20%

TRAD_ZEPHYR_Caracteristique TRAD_ZEPHYR_Valeurs
Code postal 57140
Surface loi Carrez (m²) 45,86 m²
Nombre de chambre(s) 1
Nombre de pièces 2
Etage 2
Ascenseur NON
TRAD_ZEPHYR_Caracteristique TRAD_ZEPHYR_Valeurs
Nb de salle d'eau 1
Cuisine Américaine
Mode de chauffage Gaz de ville
Type de chauffage TRAD_TYPE_CHAUFF_CHAUDIERE
Format de chauffage Individuel
Balcon NON
Terrasse OUI
Cave NON
Exposition Sud
TRAD_ZEPHYR_Caracteristique TRAD_ZEPHYR_Valeurs
Copropriété NON
TRAD_ZEPHYR_Caracteristique TRAD_ZEPHYR_Valeurs
Prix de vente honoraires TTC inclus 186 000 €
DPE GES
Contacter pour ce bien
L'agence
Téléphone 03 87 18 12 12
Adresse
24 Rue du 20e Corps Américain 57000 Metz

* Champ obligatoire

Les informations recueillies sur ce formulaire sont enregistrées dans un fichier informatisé par La Boite Immo agissant comme Sous-traitant du traitement pour la gestion de la clientèle/prospects de l'Agence / du Réseau qui reste Responsable du Traitement de vos Données personnelles. La base légale du traitement repose sur l'intérêt légitime de l'Agence / du Réseau. Elles sont conservées jusqu'à demande de suppression et sont destinées à l'Agence / au Réseau. Conformément à la loi « informatique et libertés », vous disposez des droits d’accès, de rectification, d’effacement, d’opposition, de limitation et de portabilité de vos données. Vous pouvez retirer votre consentement à tout moment en contactant directement l’Agence / Le Réseau. Consultez le site https://cnil.fr/fr pour plus d’informations sur vos droits. Si vous estimez, après avoir contacté l'Agence / le Réseau, que vos droits « Informatique et Libertés » ne sont pas respectés, vous pouvez adresser une réclamation à la CNIL. Nous vous informons de l’existence de la liste d'opposition au démarchage téléphonique « Bloctel », sur laquelle vous pouvez vous inscrire ici : https://www.bloctel.gouv.fr Dans le cadre de la protection des Données personnelles, nous vous invitons à ne pas inscrire de Données sensibles dans le champ de saisie libre.
Ce site est protégé par reCAPTCHA, les Politiques de Confidentialité et les Conditions d'Utilisation de Google s'appliquent.

Découvrir nos outils