Espace propriétaire
fr

Votre recherche

Nouveauté
Nancy (54000)

4 pièces - 81,27 m²

T4 moderne avec loggia – Résidence LIBERTY – Nancy

237 131 €
Ref : T4 Liberty 2201
Découvrir le bien

Découvrez cet appartement T4 de 81 m² situé au sein de la résidence neuve LIBERTY à Nancy, un cadre privilégié en lisière d’un bois classé et à seulement quelques minutes du centre-ville. Installé au deuxième étage, ce logement séduit par ses volumes généreux, son confort et son atmosphère moderne.

Le séjour/cuisine de 28,73 m² constitue un véritable espace de vie, lumineux et convivial, prolongé par une loggia de 8,84 m² offrant un agréable extérieur utilisable en toute saison. L’appartement dispose de trois chambres, d’une salle d’eau fonctionnelle, d’un WC indépendant et d’un dégagement spacieux facilitant l’organisation du quotidien.

Les prestations répondent aux standards d’une construction neuve performante, conforme à la RT 2012, et incluent un chauffage individuel au gaz ainsi que des volets roulants garantissant confort et maîtrise énergétique. Une place de stationnement privative vient compléter ce bien.

Implantée dans un environnement recherché, proche des écoles, des transports et des commodités, la résidence LIBERTY offre une qualité de vie appréciable au quotidien.

Un appartement rare dans le neuf, idéal pour habiter ou investir. À découvrir sans attendre ! 

Jusqu’à 35 000 € de remise (soit 4 % du prix de vente, plafonné) + frais de notaire offerts.
Offre valable sur les logements éligibles, sous réserve de la signature de l’acte authentique avant le 31 décembre 2025.

Prix TVA 20% : 269 723€  Prix TVA 5,5% : 237 131€

TRAD_ZEPHYR_Caracteristique TRAD_ZEPHYR_Valeurs
Code postal 54000
Surface habitable (m²) 81,27 m²
Nombre de chambre(s) 3
Nombre de pièces 4
Etage 2
Nombre de niveaux 1
Ascenseur OUI
Vue dégagée
TRAD_ZEPHYR_Caracteristique TRAD_ZEPHYR_Valeurs
Nb de salle de bains 1
Mode de chauffage Gaz
Type de chauffage Radiateur
Format de chauffage Individuel
Visiophone OUI
Exposition Est
Année de construction 2025
TRAD_ZEPHYR_Caracteristique TRAD_ZEPHYR_Valeurs
Copropriété OUI
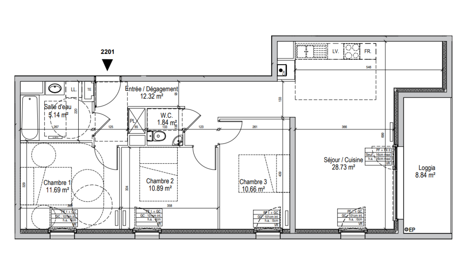
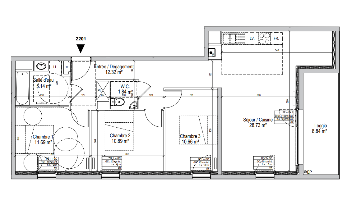
Lot n° 2201
TRAD_ZEPHYR_Caracteristique TRAD_ZEPHYR_Valeurs
Prix de vente honoraires TTC inclus 237 131 €
Rez de chaussée
chambre 11.69 m²

chambre 10.89 m²

chambre 10.66 m²

entrée 12.32 m²

salle de bain 6.98 m²

salon/sejour 28.73 m²

loggia 8.84 m²

DPE GES
Contacter pour ce bien
L'agence
Téléphone 03 87 18 12 12
Adresse
24 Rue du 20e Corps Américain 57000 Metz

* Champ obligatoire

Les informations recueillies sur ce formulaire sont enregistrées dans un fichier informatisé par La Boite Immo agissant comme Sous-traitant du traitement pour la gestion de la clientèle/prospects de l'Agence / du Réseau qui reste Responsable du Traitement de vos Données personnelles.
La base légale du traitement repose sur l’intérêt légitime de l'Agence / du Réseau.
Elles sont conservées jusqu'à demande de suppression et sont destinées à l'Agence / au Réseau.
Conformément à la loi « informatique et libertés », vous pouvez exercer votre droit d'accès aux données vous concernant et les faire rectifier en contactant l'Agence / le Réseau.
Si vous estimez, après avoir contacté l'Agence / le Réseau, que vos droits « Informatique et Libertés » ne sont pas respectés, vous pouvez adresser une réclamation à la CNIL.
Nous vous informons de l’existence de la liste d'opposition au démarchage téléphonique « Bloctel », sur laquelle vous pouvez vous inscrire ici : https://www.bloctel.gouv.fr 
Dans le cadre de la protection des Données personnelles, nous vous invitons à ne pas inscrire de Données sensibles dans le champ de saisie libre
Ce site est protégé par reCAPTCHA, les Politiques de Confidentialité et les Conditions d'Utilisation de Google s'appliquent.

Découvrir nos outils