Espace propriétaire
fr

Votre recherche

Prix en baisse
Metz (57000)

3 pièces - 70,79 m²

appartement T2 – quartier Amphithéâtre

237 000 €
Ref : E101
Découvrir le bien

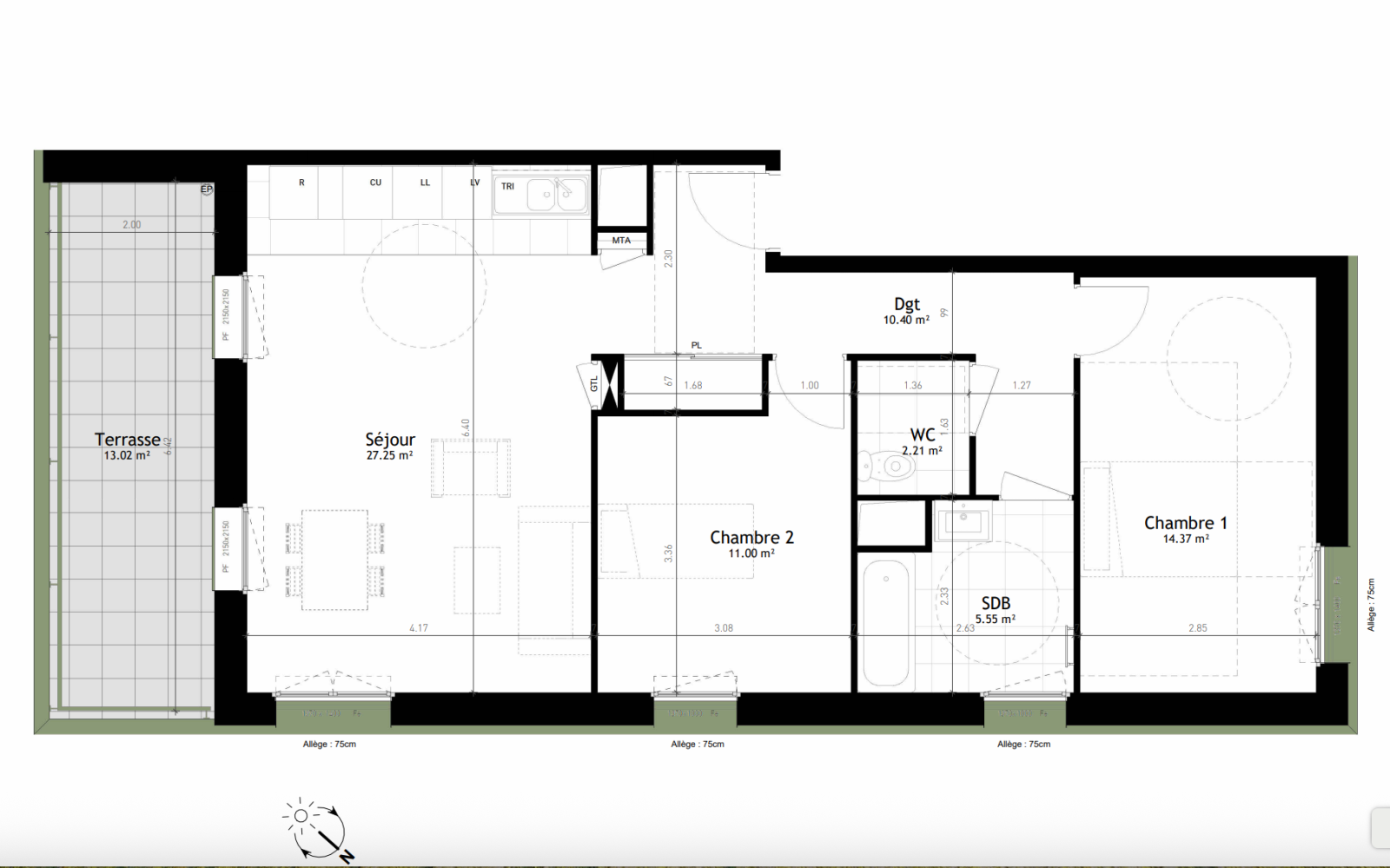
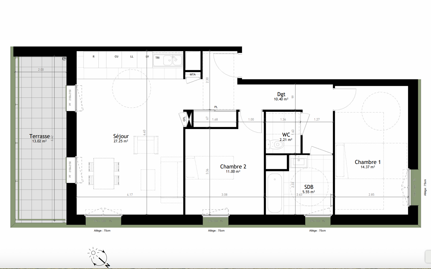
À deux pas du centre-ville de Metz 

Idéalement située à proximité immédiate des transports en commun, de la gare TGV et des grands axes routiers, la résidence Les Méliades offre un cadre de vie confortable, moderne et parfaitement connecté.

Au sein de cette résidence de standing, découvrez ce bel appartement situé au 1er étage avec ascenseur. Il se compose d’une entrée avec placard, d’une spacieuse pièce de vie de 27 m² avec cuisine ouverte donnant accès à un agréable balcon de 13 m², idéal pour profiter de l’extérieur. Un dégagement dessert un WC séparé, une salle de bain avec fenêtre ainsi qu’une grande chambre de 14 m².

Prestations de qualité : chauffage au sol, volets roulants électriques, agencement optimisé.
Le bien est vendu avec une place de parking en sous-sol.

TRAD_ZEPHYR_Caracteristique TRAD_ZEPHYR_Valeurs
Code postal 57000
Surface loi Carrez (m²) 70,79 m²
Nombre de chambre(s) 2
Nombre de pièces 3
Etage 1
Ascenseur OUI
TRAD_ZEPHYR_Caracteristique TRAD_ZEPHYR_Valeurs
Nb de salle de bains 1
Cuisine Américaine
Interphone OUI
Visiophone OUI
Balcon OUI
Terrasse NON
Cave NON
Exposition Sud-Est
Quartier Quartier de l'Amphithéâtre
TRAD_ZEPHYR_Caracteristique TRAD_ZEPHYR_Valeurs
Copropriété OUI
nombre de lots 17
TRAD_ZEPHYR_Caracteristique TRAD_ZEPHYR_Valeurs
Prix de vente honoraires TTC inclus 237 000 €
DPE GES
Contacter pour ce bien
L'agence
Téléphone 03 87 18 12 12
Adresse
24 Rue du 20e Corps Américain 57000 Metz

* Champ obligatoire

Les informations recueillies sur ce formulaire sont enregistrées dans un fichier informatisé par La Boite Immo agissant comme Sous-traitant du traitement pour la gestion de la clientèle/prospects de l'Agence / du Réseau qui reste Responsable du Traitement de vos Données personnelles. La base légale du traitement repose sur l'intérêt légitime de l'Agence / du Réseau. Elles sont conservées jusqu'à demande de suppression et sont destinées à l'Agence / au Réseau. Conformément à la loi « informatique et libertés », vous disposez des droits d’accès, de rectification, d’effacement, d’opposition, de limitation et de portabilité de vos données. Vous pouvez retirer votre consentement à tout moment en contactant directement l’Agence / Le Réseau. Consultez le site https://cnil.fr/fr pour plus d’informations sur vos droits. Si vous estimez, après avoir contacté l'Agence / le Réseau, que vos droits « Informatique et Libertés » ne sont pas respectés, vous pouvez adresser une réclamation à la CNIL. Nous vous informons de l’existence de la liste d'opposition au démarchage téléphonique « Bloctel », sur laquelle vous pouvez vous inscrire ici : https://www.bloctel.gouv.fr Dans le cadre de la protection des Données personnelles, nous vous invitons à ne pas inscrire de Données sensibles dans le champ de saisie libre.
Ce site est protégé par reCAPTCHA, les Politiques de Confidentialité et les Conditions d'Utilisation de Google s'appliquent.

Découvrir nos outils